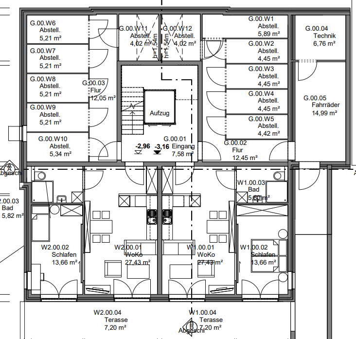
Mehrfamilienhaus mit 12 Wohneinheiten

Mehrfamilienhaus 830

  • Wohnfläche nach DIN: 830 m²
  • 12 Wohnungen von 47 m² bis 78 m²
  • Mit Terrassen, Balkonen oder Dachterrassen

Mehrfamilienhaus schlüsselfertig bauen mit 12 Wohnungen

Mehrfamilienhaus Kosten / Preise

Die Kosten für dieses Mehrfamilienhaus mit 12 Wohnungen beginnen ab 1.995.000 €.

Der abgebildete Mehrfamilienhaus Grundriss wird selbstverständlich im Rahmen unserer Planungsleistung an Ihre Bedürfnisse / Grundstücksvorgaben angepasst. Die Mehrfamilienhaus Kosten variieren entsprechend der Grundrisse und der Ausstattung der 12 Wohnungen.

Mehrfamilienhaus von AMBIENTE

Mehrfamilienhaus mit 12 Wohnungen
schlüsselfertig bauen

Dieses Mehrfamilienhaus mit 12 Wohnungen bauen wir mit über 800 m² Grundriss und schlüsselfertig in Hamburg, Kiel, Neumünster, Norderstedt und im restlichen Schleswig-Holstein. Jeden Mehrfamilienhaus Grundriss werden wir für Sie individuell entwerfen, so dass all Ihre Wünsche für Ihr modernes Mehrfamilienhaus erfüllt werden.

Wir benutzen Cookies

Wir nutzen Cookies auf unserer Website. Einige von ihnen sind essenziell für den Betrieb der Seite, während andere uns helfen, diese Website und die Nutzererfahrung zu verbessern (Tracking Cookies). Sie können selbst entscheiden, ob Sie die Cookies zulassen möchten. Bitte beachten Sie, dass bei einer Ablehnung womöglich nicht mehr alle Funktionalitäten der Seite zur Verfügung stehen.